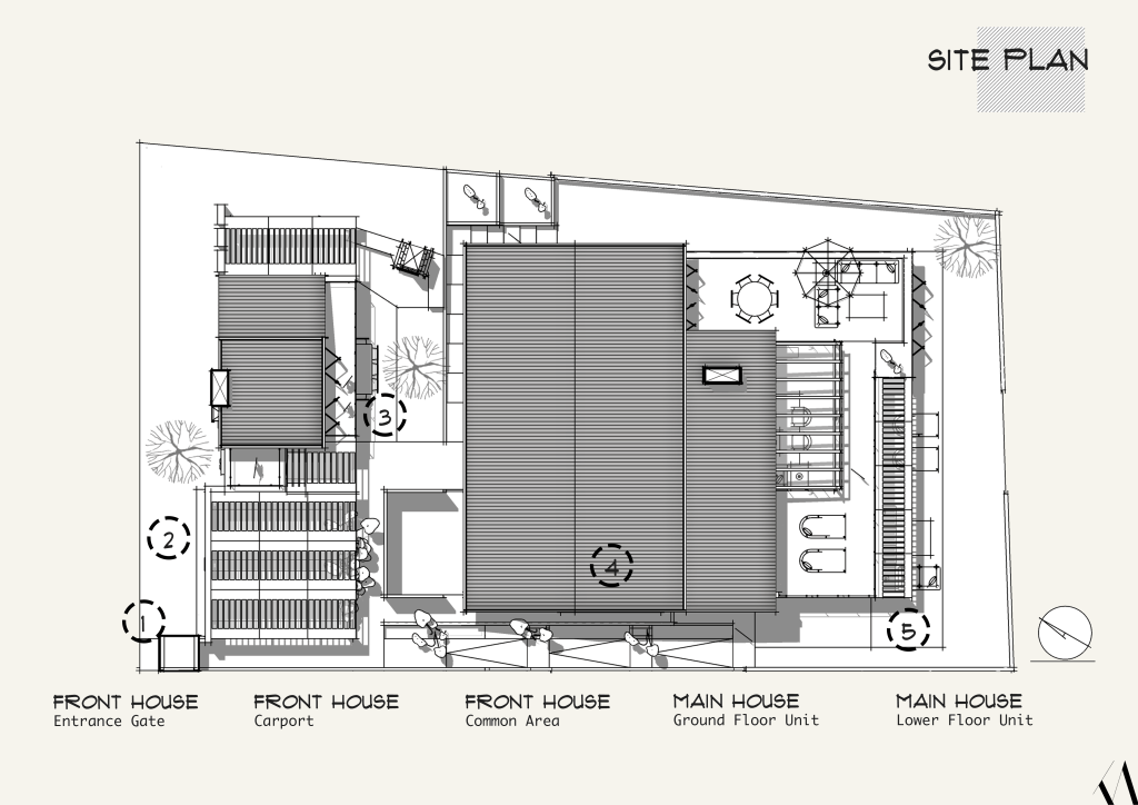
A project that focused on creating a space that was both stylish and comfortable for the owners who wanted to generate rental income from two separate units. The units are divided equally while each unit has its own private entrance and amenities. The property also includes a separate unit for the property manager , which can help to reduce costs and improve efficiency. The result is a modern home that is perfect for both short and long term stays.
Project Type
New Build
Client
JO
Size (Sqm)
450
Year
On – going
Location
Western Cape , SA






